Izsoles procesa informācija

Sludinājuma reģ.nr:
CITI/1690/2026-EIS
Izsoles sākums:
19.03.2026
Pieteikties var līdz:
08.04.2026 23:59
Izsoles noslēgums:
20.04.2026 13:00
Nosolītās summas apmaksas termiņš:
20.05.2026

Izsoles rīkotājs:
Valmieras novada pašvaldība
Adrese:
Lačplēša iela 2, Valmiera, LV-4201
Telefons:
64292229
E-pasts:
pasts@valmierasnovads.lv

Izsoles kārta:
Atkārtota
Izsoles veids:
Ar augšupejošu soli
PVN:
nav
Nodrošinājuma maksa:
€ 125.00
Izsoles dalības maksa:
€ 20.00
Rīkotāja dalības maksa :
nav
Sākumcena:
€ 1 250.00
Izsoles solis:
€ 50.00
Aktuālais solījums :
€ 1 300.00

Objekta informācija

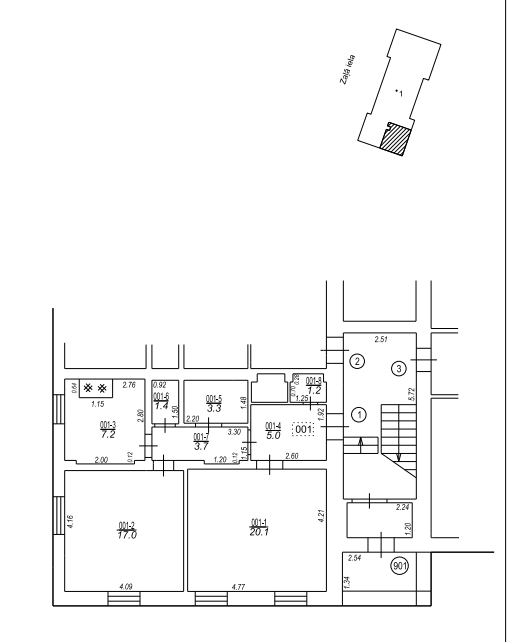
Valmieras novada pašvaldība rīko elektronisko izsoli ar augšupejošu soli nekustamam īpašumam Zaļā iela 9 - 1, Sedā, Valmieras novadā, kadastra numurs 9413 900 0373, kas sastāv no dzīvokļa ar kopējo platību 58,90 m2 (telpu grupas kadastra apzīmējums 9413 001 0217 001 001), 589/8661 kopīpašuma domājamām daļām no dzīvojamās mājas (kadastra apzīmējums 9413 001 0217 001), 589/8661 kopīpašuma domājamām daļām no zemes ar kadastra apzīmējums 9413 001 0217.

Sākumcena – 1250.00 euro, solis – 50.00  euro, izsoles nodrošinājuma nauda – 125.00 euro.

Samaksa par pirkumu veicama viena mēneša laikā pēc paziņojuma par pirkuma summu saņemšanas dienas.

Izsole sākas 19.03.2026. plkst.13:00 un noslēdzas 20.04.2026. plkst.13:00.

Izsolei pretendenti var reģistrēties no 19.03.2026. plkst.13:00 līdz 08.04.2026. plkst. 23:59 izsoļu elektroniskajā vietnē:  https://izsoles.ta.gov.lv.

Personai, kura vēlas piedalīties izsolē, līdz izsoles reģistrācijas beigu termiņam jāiemaksā nodrošinājuma nauda - 10% (desmit procenti) no izsolāmā objekta sākumcenas, t.i. EUR 125.00 (viens simts divdesmit pieci euro), kas ieskaitāma Valmieras novada pašvaldības, reģistrācijas Nr. 90000043403, norēķinu kontā AS “Luminor Bank”, konta Nr.LV94RIKO0002013098680, bankas kods RIKOLV2X, ar norādi “Zaļā iela 9 - 1, Sedā, izsoles nodrošinājums”. Dalības maksa iemaksājama Tiesu administrācijas kontā saskaņā ar elektronisko izsoļu vietnē reģistrētam lietotājam sagatavoto rēķinu.

Izsole norisinās elektroniski vietnē: https://izsoles.ta.gov.lv.Par nekustamā īpašuma apskati un izsoles norisi zvanīt 64292229, e-pasta adrese: ieva.meldere@valmierasnovads.lv.

Papildus informācija: Valmieras novada pašvaldības mājaslapā: www.valmierasnovads.lv, sadaļā “IZSOLES”.

Papildu informācija
Izsolāmo īpašumu iespējams apskatīt darba dienās no plkst. 9.00 līdz 12.00 un no 13.00 līdz 16.00, iepriekš sazinoties ar Valmieras novada pašvaldības Strenču apvienības Īpašumu apsaimniekošanas speciālistu Alekseju Jefimovu, tālrunis 64715666, e-pasta adrese: aleksejs.jefimovs@valmierasnovads.lv