Izsoles procesa informācija

Sludinājuma reģ.nr:
CITI/8446/2025-EIS
Izsoles sākums:
14.01.2026
Pieteikties var līdz:
03.02.2026 23:59
Izsoles noslēgums:
13.02.2026 13:00
Nosolītās summas apmaksas termiņš:
13.03.2026

Izsoles rīkotājs:
Valmieras novada pašvaldība
Adrese:
Lačplēša iela 2, Valmiera, LV-4201
Telefons:
64292229
E-pasts:
pasts@valmierasnovads.lv

Izsoles kārta:
2.
Izsoles veids:
Ar augšupejošu soli
PVN:
nav
Nodrošinājuma maksa:
€ 3 680.00
Izsoles dalības maksa:
€ 20.00
Rīkotāja dalības maksa :
nav
Sākumcena:
€ 36 800.00
Izsoles solis:
€ 250.00
Aktuālais solījums :
€ 37 050.00
Lai nosūtītu lūgumu autorizēt dalībai izsolē, pieslēdzies

Objekta informācija

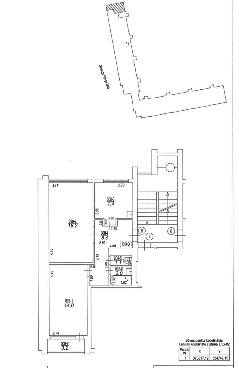
Valmieras novada pašvaldība rīko elektronisko izsoli ar augšupejošu soli nekustamam īpašumam Georga Apiņa iela 18 - 8, Valmierā, Valmieras novadā, kadastra numurs 9601 900 8448, kas sastāv no dzīvokļa ar kopējo platību 54,20 m2 (telpu grupas kadastra apzīmējums 9601 017 0804 001 008), 5101/572292 kopīpašuma domājamām daļām no dzīvojamās mājas (kadastra apzīmējums 9601 017 0804 001).

Sākumcena – 36800,00 euro, solis – 250,00  euro, izsoles nodrošinājuma nauda – 3680,00 euro. Samaksa par pirkumu veicama viena mēneša laikā pēc paziņojuma par pirkuma summu saņemšanas dienas.

Izsole sākas 14.01.2026. plkst.13:00 un noslēdzas 13.02.2026. plkst.13:00.

Izsolei pretendenti var reģistrēties no 14.01.2026. plkst.13:00 līdz 03.02.2026. plkst. 23:59 izsoļu elektroniskajā vietnē:  https://izsoles.ta.gov.lv.

Personai, kura vēlas piedalīties izsolē, līdz izsoles reģistrācijas beigu termiņam jāiemaksā nodrošinājuma nauda - 10% (desmit procenti) no izsolāmā objekta sākumcenas, t.i. EUR 3680,00 (trīs tūkstoši seši simti astoņdesmit euro), kas ieskaitāma Valmieras novada pašvaldības, reģistrācijas Nr.90000043403, norēķinu kontā AS “Luminor Bank”, konta Nr.LV94RIKO0002013098680, bankas kods RIKOLV2X, ar norādi “Georga Apiņa iela 18 - 8, Valmierā izsoles nodrošinājums”. Dalības maksa iemaksājama Tiesu administrācijas kontā saskaņā ar elektronisko izsoļu vietnē reģistrētam lietotājam sagatavoto rēķinu.

 

Izsole norisinās elektroniski vietnē: https://izsoles.ta.gov.lv. Par nekustamā īpašuma izsoles norisi zvanīt 64292229, e-pasta adrese: ieva.meldere@valmierasnovads.lv.

 

Par īpašuma apskati zvanīt 20306522, e-pasta adrese: andris.mednis@valmierasnovads.lv.

 

 

Papildu informācija
Izsolāmo īpašumu iespējams apskatīt darba dienās no plkst. 9.00 līdz 12.00 un no 13.00 līdz 16.00, iepriekš sazinoties ar Valmieras novada pašvaldības Nekustamā īpašuma apsaimniekošanas pārvaldes Nekustamā īpašuma pārvaldnieku Andri Medni, tālrunis 20306522, e-pasta adrese: andris.mednis@valmierasnovads.lv.