Izsoles procesa informācija

Sludinājuma reģ.nr:
CITI/7133/2025-EIS
Izsoles sākums:
27.10.2025
Pieteikties var līdz:
16.11.2025 23:59
Izsoles noslēgums:
26.11.2025 13:00
Nosolītās summas apmaksas termiņš:
26.11.2026

Izsoles rīkotājs:
Daugavpils valstspilsētas pašvaldība,Pašvaldība
Adrese:
Kr.Valdemara iela 1, Daugavpils, LV-5401
Telefons:
65404355
E-pasts:
info@daugavpils.lv

Izsoles kārta:
3.
Izsoles veids:
Ar augšupejošu soli
PVN:
nav
Nodrošinājuma maksa:
€ 164.00
Izsoles dalības maksa:
€ 20.00
Rīkotāja dalības maksa :
nav
Sākumcena:
€ 1 640.00
Izsoles solis:
€ 100.00
Aktuālais solījums :
-

Objekta informācija

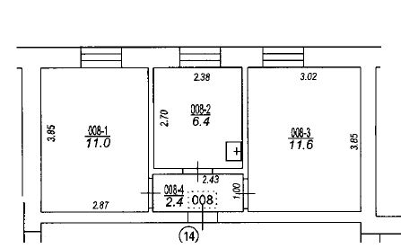
     Daugavpils valstspilsētas pašvaldība rīko elektronisko izsoli ar augšupejošu soli dzīvokļa īpašumam: Februāra ielā 30-14, Daugavpilī, kadastra Nr.05009034471, kura sastāvā ietilpst dzīvoklis Nr.14 31.4m2 platībā, mājas un zemesgabala, kadastra Nr.05000020502, 314/2406 kopīpašuma domājamās daļas.

     Dzīvoklis nav izīrēts. Dzīvoklis atrodas 2 stāvu dzīvojamās mājas 2.stāvā. Pircējam par saviem līdzekļiem jāveic dzīvokļa renovācija un par saviem līdzekļiem jāatbrīvo dzīvokli no iepriekšējo īrnieku sadzīves priekšmetiem.

     Izpirkšanas kārtība:  avanss – 10% no izsolē piedāvātās augstākās summas jāsamaksā divu nedēļu laikā kopš izsoles noslēguma dienas. Galīgo norēķinu (atlikto maksājumu) var veikt viena gada laikā kopš izsoles noslēguma dienas. Par atlikto maksājumu jāmaksā 6% (seši procenti) gadā no vēl nesamaksātās pirkuma maksas daļas. Ja pircējs samaksā visu pirkuma maksu mēneša laikā no pirkuma līguma spēkā stāšanās dienas, maksa par atlikto maksājumu pircējam nav jāmaksā.

     Ja izsolē piedalīsies viens pretendents, dzīvokļa īpašums tiks pārdots, ja tiek pārsolīta izsoles sākumcena.

     Izsole sākas 27.10.2025. plkst.13.00 un noslēdzas 26.11.2025. plkst.13.00.

     Pretendentu pieteikšanās no 27.10.2025. plkst. 13.00 līdz 16.11.2025. plkst. 23.59 elektronisko izsoļu vietnē https://izsoles.ta.gov.lv .

     Izsoles sākumcena 1640 EUR. Nodrošinājums – 164 EUR. Izsoles solis – 100 EUR.

     Lai varētu piedalīties izsolē, pretendentiem līdz 16.11.2025. (ieskaitot) jāiemaksā izsoles nodrošinājums 164 EUR Daugavpils valstspilsētas pašvaldības (reģ. Nr. 90000077325) kontā Nr.LV15TREL9802003052000, Valsts kase, TRELLV22, ar norādi maksāšanas paziņojumā "Dzīvokļa īpašuma Februāra ielā 30-14, Daugavpilī, izsoles nodrošinājums" un, izmantojot elektronisko izsoļu vietni, jānosūta lūgums izsoles rīkotājam par autorizāciju izsolei.

     Dalības maksa iemaksājama Tiesu administrācijas kontā saskaņā ar elektronisko izsoļu vietnē reģistrētam lietotājam sagatavoto rēķinu.

     Par dzīvokļa apskati zvanīt darba laikā no pirmdienas līdz piektdienai no 9.00 – 16.00 uz tālr.654 25130. Par izsoles norisi zvanīt 654 04352, 654 04354, 654 04348. Ar izsoles noteikumiem var iepazīties elektronisko izsoļu vietnē https://izsoles.ta.gov.lv un Daugavpils valstspilsētas pašvaldības tīmekļvietnē:

https://www.daugavpils.lv/pasvaldiba/ipasumi/informacija-par-pasvaldibas-ipasumiem?izsoles=true